1728 Cambridge Dr

  • $1,699,000
Alameda, California
Closed
1728 Cambridge Dr
Alameda, California
  • $1,699,000

Overview

  • Residential
  • Property Type
  • 4
  • Bedrooms
  • 4
  • Bathrooms
  • 2
  • Garages
  • 2333
  • Sqft
  • 507241
  • Property ID

Description

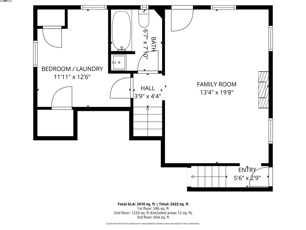
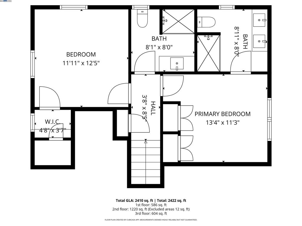
STUNNING TUDOR nestled in Alameda’s coveted Fernside neighborhood, this beautifully restored 1927 house offers 4 bedrooms, 3.5 bathrooms, 2,333 SF, and a charming split-level layout. The house has bespoke features, renovated with permits, the main level features a spacious living room, dining area, newly added powder room, one bedroom and a stunning chef’s kitchen with marble countertops, a 48” gas stove, soft-close cabinetry and newer appliances. Upstairs is the primary suite, an additional bedroom and a full bathroom, while the lower level includes a family room, guest room, full bath and laundry area. Major system upgrades include upgraded electrical and plumbing, dual pane windows, flooring, central heating with added vents and ducts, and a sewer lateral replacement. Original architectural elements, such as the front windows and built-ins, were thoughtfully preserved, complemented by newer wood and LVP flooring, fresh paint, updated lighting, and beautifully renovated bathrooms. Additional improvements include roof repairs, seismic upgrades, refreshed landscaping and a rebuilt porch and driveway gate. A remarkable Tudor that marries classic character with thoughtful modern updates—absolutely worth seeing!

Details

Updated on January 23, 2026 at 1:57 am
Listed by Guy Blume, KW Advisors East Bay
  • Property ID: 507241
  • Price: $1,699,000
  • Property Size: 2333 Sqft
  • Land Area: 5000 Square Feet
  • Bedrooms: 4
  • Bathrooms: 4
  • Garages: 2
  • Year Built: 1927
  • Property Type: Residential
  • Property Status: Closed

Schedule a Tour

Tour Type

Mortgage Calculator

Monthly
  • Down Payment
  • Loan Amount
  • Monthly Mortgage Payment
  • Property Tax
  • Home Insurance
  • PMI
  • Monthly HOA Fees
$
%
%
%
$
$
%

360° Virtual Tour

https://vimeo.com/1140491392

Similar Listings

Compare listings

Compare
  • Eddy